Appartamenti quadrilocale in vendita piazza Garibaldi 1, Cardito, località Centro (P.zza Garibaldi, P.zza Madonna delle Grazie, C.so Camillo Daniele)

Campania Napoli Cardito Centro (P.zza Garibaldi, P.zza Madonna delle Grazie, C.so Camillo Daniele) Rif. QFQ-406
    Piazza Garibaldi 1
+

Nuova costruzione in piazza a Cardito

Prezzo
€ 290.000
Contratto
Vendita
Tipologia
Appartamenti
Destinazione
Residenziale
Regione
Campania
Provincia
Napoli
Comune
Cardito
Località
Centro (P.zza Garibaldi, P.zza Madonna delle Grazie, C.so Camillo Daniele)
Superficie
100 m²
Superficie Commerciale
121 m²
Locali
4
Camere
3
Bagni
2

CARDITO - PIAZZA GARIBALDI

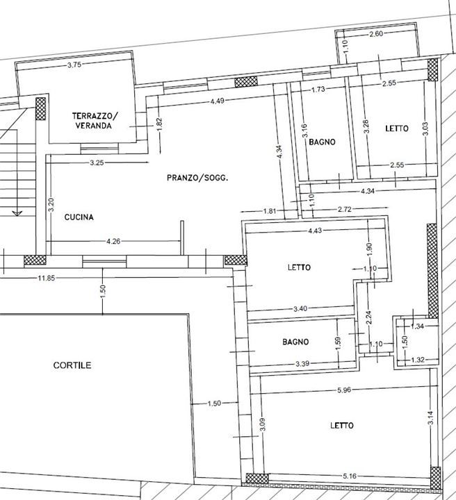
Nel pieno centro di Cardito, proponiamo in esclusiva, un appartamento sito al primo piano all'interno di un edificio di nuova costruzione.
L'appartamento è suddiviso in 4 vani e doppi accessori così composto: ingresso in cucina-salone ambiente unico con doppio affaccio su balcone interno e terrazzino su strada, corridoio, cameretta con balcone anch'esso su strada, camera matrimoniale ed ulteriore cameretta con affaccio interno, 2 bagni e ripostiglio.
La opere sono in corso di costruzione e la casa sarà completata, con possibilità di scelta da capitolato, entro luglio 2026.
Completa la proprietà un box auto di 15 mq sito al piano terra.

SE VUOI ACQUISTARE UNA NUOVA COSTRUZIONE AL CENTRO DI CARDITO CONTATTACI

Classe Energetica: kWh/m2

Caratteristiche

Condizioni: Nuova Costruzione
Riscaldamento: Autonomo
Parcheggio: Box auto
Piano: 1 - piani edificio: 3
Cucina: Abitabile
Balcone: Si
Anno di Costruzione: 2026
Ascensore:
Predisposizione climatizzazione
Infissi con vetrocamera
Box auto
Esposizione esterna
Doppia esposizione
Cancello elettrico
Infissi alluminio
Cucina Abitabile
Balconi
Riscaldamento autonomo
Porta blindata

Foto

Nuova costruzione in piazza a Cardito - 1
Nuova costruzione in piazza a Cardito - 2
Nuova costruzione in piazza a Cardito - 3
Nuova costruzione in piazza a Cardito - 4
Nuova costruzione in piazza a Cardito - 5
Nuova costruzione in piazza a Cardito - 6
Nuova costruzione in piazza a Cardito - 7
Nuova costruzione in piazza a Cardito - 8
Nuova costruzione in piazza a Cardito - 9
Nuova costruzione in piazza a Cardito - 10
Nuova costruzione in piazza a Cardito - 11
Nuova costruzione in piazza a Cardito - 12
Nuova costruzione in piazza a Cardito - 13
Nuova costruzione in piazza a Cardito - 14
Nuova costruzione in piazza a Cardito - 15
Nuova costruzione in piazza a Cardito - 16
Nuova costruzione in piazza a Cardito - 17
Nuova costruzione in piazza a Cardito - 18
Nuova costruzione in piazza a Cardito - 19
Nuova costruzione in piazza a Cardito - 20
Nuova costruzione in piazza a Cardito - 21
Nuova costruzione in piazza a Cardito - 22
Nuova costruzione in piazza a Cardito - 23

Mappa