Soluzioni Indipendenti in vendita 265 m², Cardito, località Nuovo Centro (I Maggio - Donadio)

Campania Napoli Cardito Nuovo Centro (I Maggio - Donadio) Rif. TIR-408
+

VILLA SU TRE LIVELLI IN UN CONTESTO ESCLUSIVO

Prezzo
€ 450.000
Contratto
Vendita
Tipologia
Soluzioni Indipendenti
Tipo di Proprietà
Intera proprietà
Destinazione
Residenziale
Regione
Campania
Provincia
Napoli
Comune
Cardito
Località
Nuovo Centro (I Maggio - Donadio)
Superficie
265 m²
Locali
6
Camere
4
Bagni
3

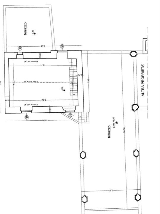
Cardito, via Pietro Donadio, all'interno del Castello, in un complesso residenziale di pregio proponiamo in Vendita Villa di circa 265 mq commerciali con doppio ingresso così suddivisi:
- Piano terra di circa 85 mq composto da ingresso in ampio salone con cucina, bagno e cortile anteriore e posteriore circa 100 mq
- Primo piano di circa 55 mq composto attualmente da un unico ambiente e terrazzo di circa 30
- Secondo piano di circa 55 mq composto attualmente da un unico ambiente e terrazzo di circa 154 mq
L'immobile gode di un'ottima posizione in quanto vicino a scuole, centro commerciale, imbocchi autostradali come l'asse mediano ecc. L'immobile ha la possibilità di essere completato usufruendo dei bonus attualmente disponibili con € 96.000,00 in più, si possono recuperare il 50% in 10 anni. Essendo in fase di costruzione potrete scegliere le rifiniture che desiderate e personalizzare gli spazi secondo le vostre necessità.

Classe Energetica: N.C.

Caratteristiche

Condizioni: Da completare
Parcheggio: Posto auto scoperto
Piano: Multipiano - piani edificio: 3

Foto

VILLA SU TRE LIVELLI IN UN CONTESTO ESCLUSIVO - 1
VILLA SU TRE LIVELLI IN UN CONTESTO ESCLUSIVO - 2
VILLA SU TRE LIVELLI IN UN CONTESTO ESCLUSIVO - 3
VILLA SU TRE LIVELLI IN UN CONTESTO ESCLUSIVO - 4
VILLA SU TRE LIVELLI IN UN CONTESTO ESCLUSIVO - 5
VILLA SU TRE LIVELLI IN UN CONTESTO ESCLUSIVO - 6
VILLA SU TRE LIVELLI IN UN CONTESTO ESCLUSIVO - 7
VILLA SU TRE LIVELLI IN UN CONTESTO ESCLUSIVO - 8
VILLA SU TRE LIVELLI IN UN CONTESTO ESCLUSIVO - 9
VILLA SU TRE LIVELLI IN UN CONTESTO ESCLUSIVO - 10
VILLA SU TRE LIVELLI IN UN CONTESTO ESCLUSIVO - 11
VILLA SU TRE LIVELLI IN UN CONTESTO ESCLUSIVO - 12
VILLA SU TRE LIVELLI IN UN CONTESTO ESCLUSIVO - 13
VILLA SU TRE LIVELLI IN UN CONTESTO ESCLUSIVO - 14
VILLA SU TRE LIVELLI IN UN CONTESTO ESCLUSIVO - 15
VILLA SU TRE LIVELLI IN UN CONTESTO ESCLUSIVO - 16
VILLA SU TRE LIVELLI IN UN CONTESTO ESCLUSIVO - 17
VILLA SU TRE LIVELLI IN UN CONTESTO ESCLUSIVO - 18
VILLA SU TRE LIVELLI IN UN CONTESTO ESCLUSIVO - 19
VILLA SU TRE LIVELLI IN UN CONTESTO ESCLUSIVO - 20
VILLA SU TRE LIVELLI IN UN CONTESTO ESCLUSIVO - 21
VILLA SU TRE LIVELLI IN UN CONTESTO ESCLUSIVO - 22
VILLA SU TRE LIVELLI IN UN CONTESTO ESCLUSIVO - 23
VILLA SU TRE LIVELLI IN UN CONTESTO ESCLUSIVO - 24
VILLA SU TRE LIVELLI IN UN CONTESTO ESCLUSIVO - 25
VILLA SU TRE LIVELLI IN UN CONTESTO ESCLUSIVO - 26
VILLA SU TRE LIVELLI IN UN CONTESTO ESCLUSIVO - 27
VILLA SU TRE LIVELLI IN UN CONTESTO ESCLUSIVO - 28
VILLA SU TRE LIVELLI IN UN CONTESTO ESCLUSIVO - 29
VILLA SU TRE LIVELLI IN UN CONTESTO ESCLUSIVO - 30
VILLA SU TRE LIVELLI IN UN CONTESTO ESCLUSIVO - 31
VILLA SU TRE LIVELLI IN UN CONTESTO ESCLUSIVO - 32
VILLA SU TRE LIVELLI IN UN CONTESTO ESCLUSIVO - 33

Mappa